居住空間 / 新秀獎人氣獎
維耕建築師事務所
蘇楠凱,林志龍
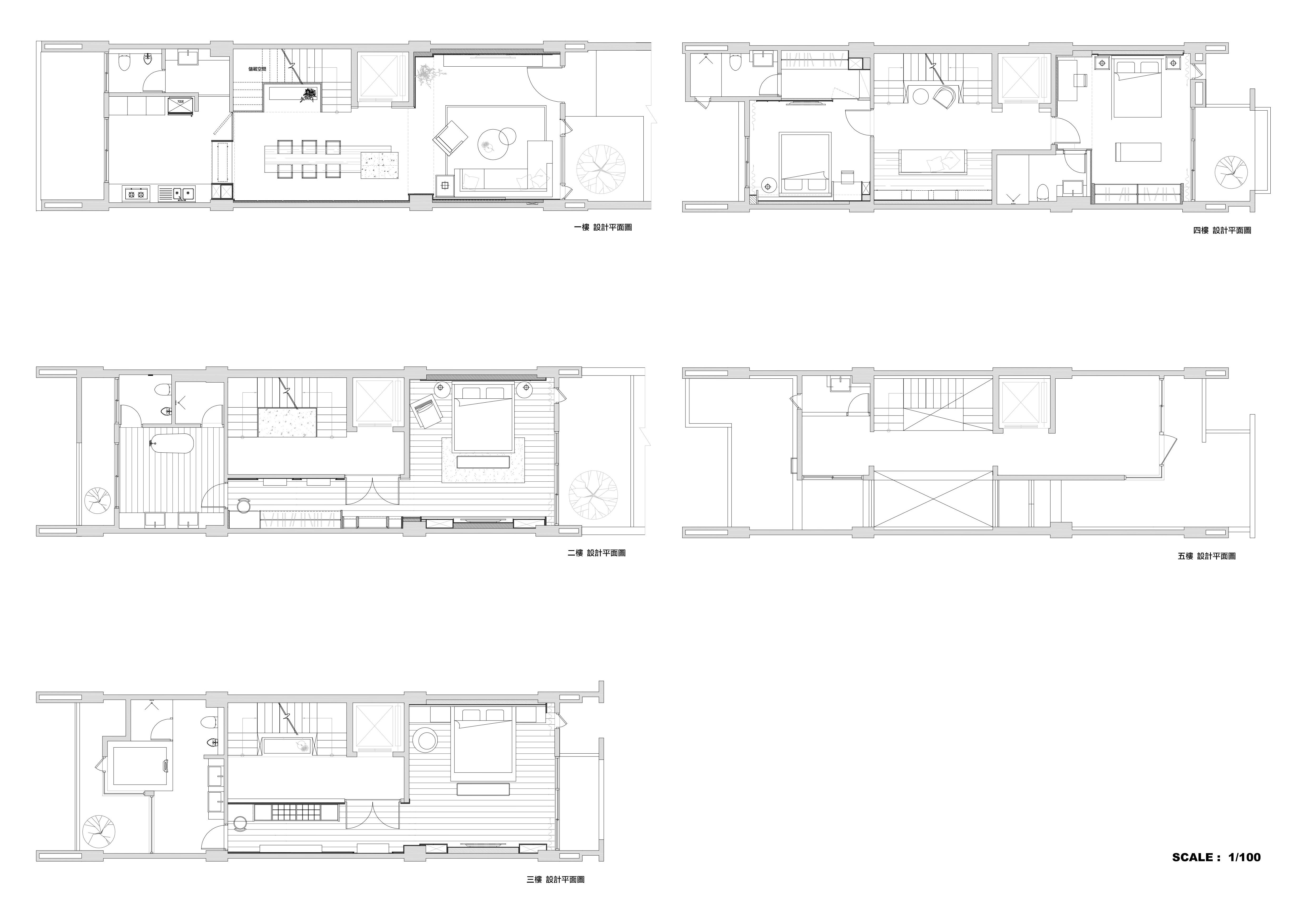
作品名稱 /岑寂‧深邃作品說明 /利用視覺的穿透,突破空間的疆界,將自然的元素,滲入生活當中。並融合戶外的風光水綠,擴大空間效果。除了使環境更加舒適,也強調空間與光影的搭配與自然的結合。
提醒你
本網站隱私權政策已於2018年7月20日更新,請至閱覽並同意新版隱私權政策,若您繼續使用本網站,則視為您已同意新版隱私權政策。
作品說明 /利用視覺的穿透,突破空間的疆界,將自然的元素,滲入生活當中。並融合戶外的風光水綠,擴大空間效果。除了使環境更加舒適,也強調空間與光影的搭配與自然的結合。