居住空間: 單層類 / 優勝獎
參拾柒號設計
參拾柒號設計/黃鈺維,參拾柒號設計/徐嘉薇
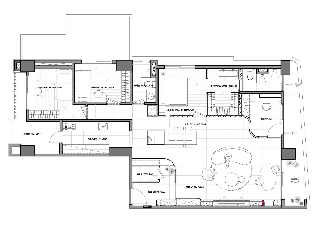
作品名稱 /澄煦作品說明 /弧光流轉,質感新境。 優雅的弧線打破方正侷限,澄煦以獨特設計營造流暢空間。特殊塗料細膩呈現光影變化,讓每道牆面如藝術品般動人。 圓潤線條柔和邊界,細緻材質帶來視覺與觸覺的雙重享受。無論晨光輕灑或夜燈微亮,都能感受靜謐與和諧。 澄煦,為品味細膩的您,打造詩意棲居。
提醒你
本網站隱私權政策已於2018年7月20日更新,請至閱覽並同意新版隱私權政策,若您繼續使用本網站,則視為您已同意新版隱私權政策。
作品說明 /弧光流轉,質感新境。 優雅的弧線打破方正侷限,澄煦以獨特設計營造流暢空間。特殊塗料細膩呈現光影變化,讓每道牆面如藝術品般動人。 圓潤線條柔和邊界,細緻材質帶來視覺與觸覺的雙重享受。無論晨光輕灑或夜燈微亮,都能感受靜謐與和諧。 澄煦,為品味細膩的您,打造詩意棲居。