Living Space / Single-story / TINTA Award Honorable Mention
由象空間設計
由象空間 蔡芮芮,由象空間 趙咨雯
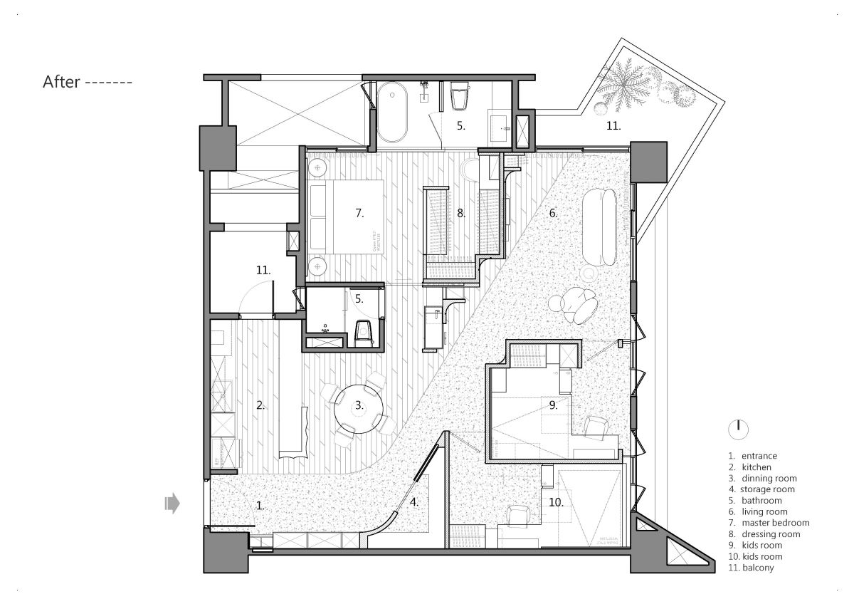
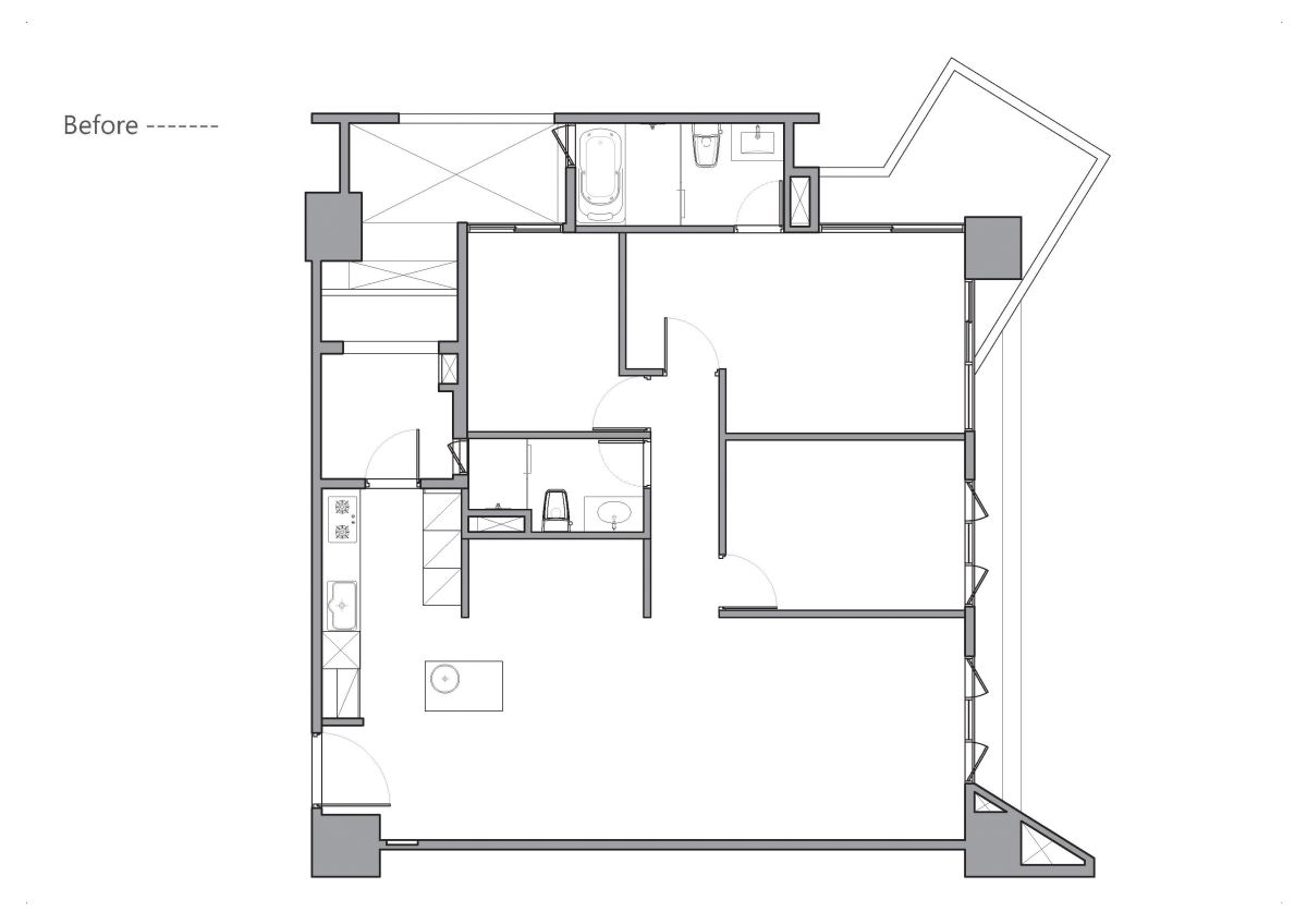
Project Name /日光粼粼Project Description /想像早晨的第一道曙光,透過陽台步入室內,經過雕塑牆體留下身影,再躍上餐桌變成餐盤上的太陽蛋,成為每日喚醒家人們的清晨儀式。 難以忘懷初次碰面的一家四口,表露著一家情感的緊密,小六的弟弟甚至會跟國三的姐姐牽著手睡覺,這是我最想在空間中延續的情感互動;這案空間的特點,便是直指日出角度的陽台,屬社區中的特殊戶,客變前的標配,是將陽台留給主臥使用,認為如此有愛的一家人,應該把最好的光景,留作他們共聚記憶的場域,於是開放空間串聯日出陽台的起居客廳,便是客變的起點。 - 本案有意識地將「日出」,透過雕塑般的曲線牆體,粼粼的留下日光身影,讓飄渺的時間因為凝視而停留。以斜角動線將空間一分為二,串聯入口至陽台形成日光迴廊,並以天花指向性的光束,呼應地坪異材質的隱匿輪廓,讓曙光的痕跡,虛實並進的蔓延入室。 開放洗手台與衛浴獨立,緩解早晨漱洗的如廁壓力,鄰接的四人圓桌,彷彿看著就能聽到「洗好手來吃早餐囉!」來自媽媽的呼喚,並成為串聯主臥與姊弟房居室的中介空間。 主臥安置在全室較為隱蔽的尾段,以大面玻璃隔間取代建案一字型的格局,採納主浴光線讓浴室與居室融為一體,附予空間有更多的情調與儀式性。交屋後的兩姊弟已是國中大學的年紀,客變時以膠囊旅館概念整合的格局,調整為更為私密且獨立的相鄰空間,利用臨窗的玻璃隔間,使東向採光貫穿客廳至房間,削弱獨立成室的封閉感,並以床台架高方式,在小巧的區域內增加垂直的收納機能,釋放空間靈活利用的維度。 全室奶油色調舖底,以女主心儀的精品色錯落各角落,藉由光與立面的對話,勾勒出本家的個性與輪廓,讓時間、空間與情感交融其中,每當日光苒起,這個家也隨之甦醒,每一道光影都是生活的印記,每一處空間都承載家人的溫度。

