Living Space / Multi-story residential / TINTA Award Honorable Mention
由象空間設計
由象空間 蔡芮芮,由象空間 趙咨雯
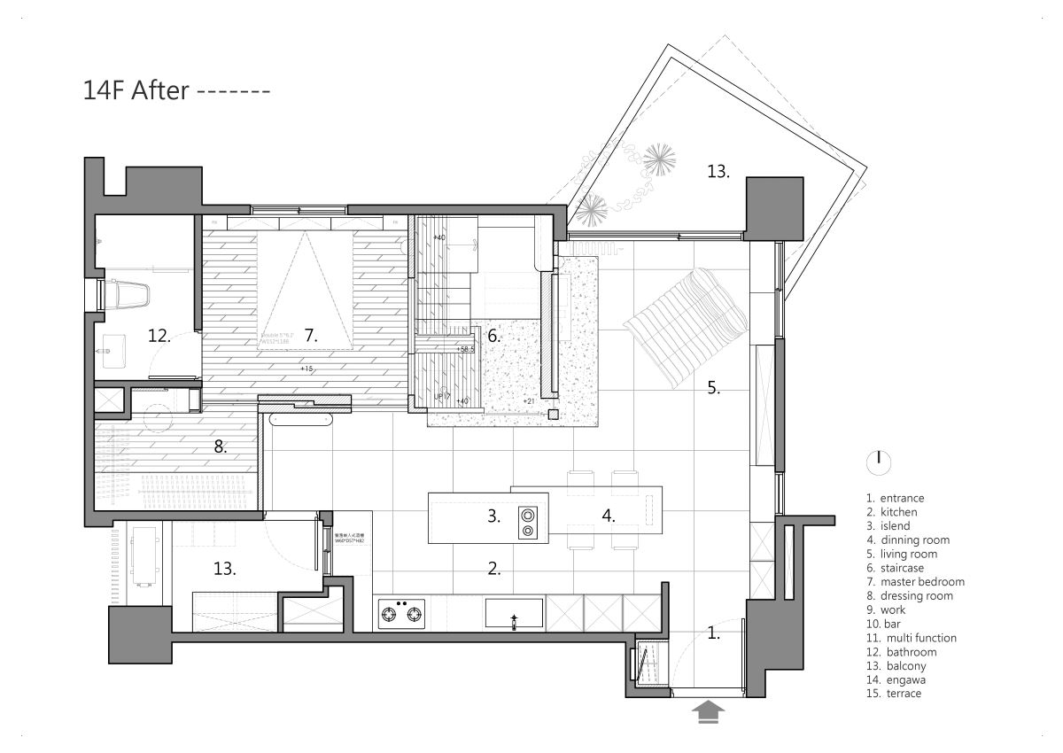
Project Name /十口之家Project Description /2大2小6隻貓,Rocker音樂人要在家工作、藍帶甜點師要廚藝教室,還有需要隨時看顧的小小孩與 6 隻貓;我們以居住多樣性為主軸,挑戰一家十口獨立不受干擾,又能自在切換工作與生活的複式空間。 這案空間的特點,是複層二樓與直指日出角度的陽台,屬社區中唯二的特殊戶,客變之初的標配樓梯原是RC梯,阻擋了光線也截斷了連結,基於十口人家複雜的生活型態,便心生了與建設端協調改變RC梯為鋼梯的想法;很幸運的,RC梯轉為鋼構排骨梯,成就了將梯間設為獨立貓屋的想法,並成為連結上下層,男女主人工作延伸至家庭生活的「第三空間」。 延伸前兩階梯踏,樓梯入口多一個轉折停留的平台,讓貓屋裡有一個小主人們安坐的位置, 延伸至客廳的踏階,便是雙向的座位平台,使客廳不單只有對著電視的功能,是親子讀書角,真正的交誼空間;大面積的開口取代密閉的隔間,貓屋空間滿載日光,成為串接上下各空間的溫暖導體,在這裡,踏階就是貓跳台,達成裡外上下與主人們互視卻不打擾的平衡。 兩夫妻皆為在家工作的職業形態,一動一靜輪著看顧小孩,我們將各自領域獨立帶開;樓上以「店鋪」為發展方向,滿足男主以視訊會議販售器材時,商品陳列的背景,並留設多功能室,成為階段性使用的客房兼遊戲間;樓下以女主可當作廚藝教室的大中島餐桌為核心,回字形的動線,也滿足小小孩放電的需求;主臥援以通鋪形式,滿足階段性小小孩一同睡臥的機能,並以長虹玻璃透光不透視的特質,搭配太空罩,形塑與貓室的視線距離。 立體維度的貓屋如同一個光盒子,成為連結上下層的重要介質,所有居室的視線皆指向這個「第三空間」,達成十口之家人貓共好的複合式家宅。

