Commercial Space / Food and Beverage / TINTA Award Gold
泛域设计咨询(杭州)有限公司
朱啸尘
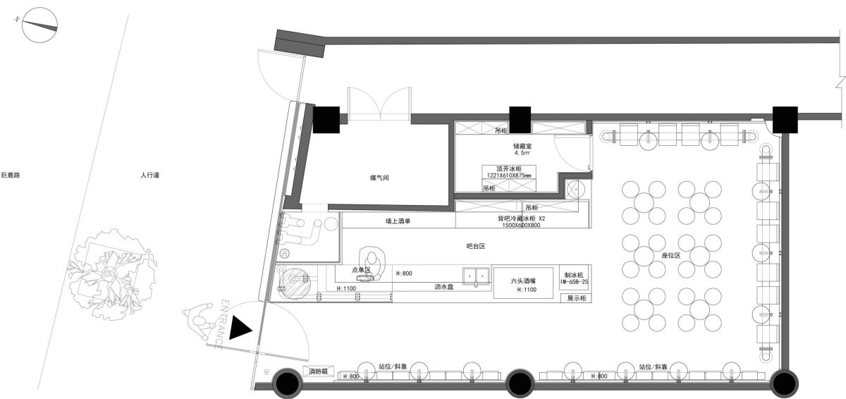
Project Name /DASH LANDProject Description /“集装箱”里的鸡尾酒吧| DASH LAND 01自由与纯粹的鸡尾酒文化 COCKTAIL YOUR WAY:纯粹、包容、自由、出“奇”不意 “我们希望可以打破鸡尾酒门槛,让每个人找到随心所欲搭配独特风味的乐园,让鸡尾酒变得更贴近生活。” DASH LAND品牌开设的第一家线下鸡尾酒吧,我们融入BLUE & WAVE的品牌基因,在设计中提出“CITY DRINK”的松弛定位。 为愿意分享个性,追寻舒适归属感、Chill氛围的年轻男女创造一个自由自在的精神栖息地。于是,带着这种愿望,DASH LAND诞生了。 02一个“集装箱”里的酒吧 DASH LAND选址在上海繁华的巨鹿路与襄阳北路交汇处,周围酒吧林立。 在第一次勘察场地时,场地内布满了的消防水管就抓住了我们的视线,这些水管无法拆除或移动,那么就以管道为设计出发点,结合独特的空间感和氛围创造一种工业风格的酒吧。 我们设计了一个像集装箱一样的巨大门头,门一打开,水管便开始垂落,并散发出蓝色的光芒。 这个集装箱门不仅可以打开,还可以翻转。我们希望:白天路人经过时,会被这个门头吸引,好奇里面究竟是什么样的空间。 而当夜幕降临,空间的,金属材质的门头则能更好的晕染DASH LAND独特的蓝色光晕。 酒吧的幕墙玻璃与原墙面形成了错落有致的层次感,玻璃内侧嵌入了历史元素,增添了空间的深度和故事感。 03从管道到空间的再创造 管道的运用从外立面延续到了空间内部,我们将原本的消防管道包裹起来,同时再空间中安置了许多“新管道”,它们成为空间中的坐凳、靠背、桌子、展示架。 打破人与人之间的距离感,通过管道的独特尺度与使用感受,社交场景&行为方式发生改变,站着、靠着、对坐、反坐、围坐……微醺的社交体验,让小酌成为一种生活状态。 04蓝色基因与律动空间 属于品牌DNA的蓝色元素,强烈视觉冲击力成为空间的核心色彩表达。 蓝色象征着自由、包容和无拘束的精神。主标识的动感设计如同波浪般涌动,释放出无穷的能量与魅力。蓝色不仅仅是色彩的选择,更是我们想要传递的情绪与态度。 整个空间保留了部分原有墙面,在空间拆除的过程中,墙面原始存留的蓝色剥落涂料,给了我们额外的惊喜,与DASH LAND的品牌不谋而合,我们将之保留,其余新墙则经过做旧处理,与原有风格相得益彰。 座位的设计也颇具趣味,水管的两端嵌入了蓝色灯光,当灯光透过水管溢出时,仿佛是鸡尾酒从杯中溢出,增添了视觉上的动感和戏剧性。 05微醺经济下的新型社交方式 新型酒水社交模式下的微醺 —— 一种小啜慢饮,介于清醒与不清醒的状态,成为当下的新消费趋势,并衍生出以低度酒为主的微醺经济。 在DASH LAND, 每一杯酒、 每一次相遇, 都在诉说着无尽可能。

