Real Estate Space / Showroom / TINTA Award Gold
行舍空間事務所
行舍空間事務所/蕭涵瑩
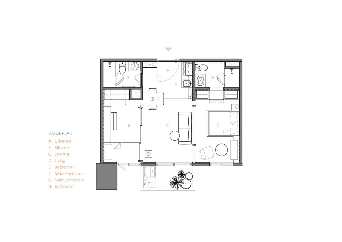
Project Name /敞 ‧ 聚Project Description /以「打開生活」的空間概念為設計核心,本案家庭成員定位以小家庭成員為主,透過障紙拉門弱化電視主牆與席地而坐的榻榻米模糊空間與空間的界線,將拉門敞開使客廳與餐廳延伸至次臥,形成充滿互動的家庭生活場域,讓家人們可自由地穿梭於空間之間,拉門的開合不僅創造了多樣的空間層次,也賦予空間更多的表情變化,主臥空間則在窗邊一隅設計多功能的生活場景,將展開互動與寧靜靜謐的生活美學完美融合

