Office / TINTA Award Gold
陈浩鹏(深圳)室内设计有限公司
陳浩鵬(深圳)室內設計有限公司/陳浩鵬
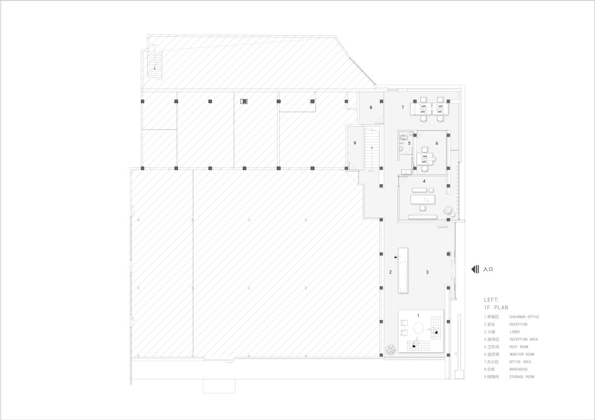
Project Name /回廊絮语Project Description /新零售也好, 新辦公也好, 未來對於不同使用空間的革新將會越來越多。 本次為俊美公司打造的辦公空間是一次新的嘗試;在空間設計上我們打破傳統製造業墨守成規、刻板單一的固有模式,創造一個具有多元需求及創新性的辦公空間。 新材質與舊廠房的建築結構形成強烈反差。 極簡線條解構了混凝土的厚重體態, 外立面的結構構件與內部留白空間形成戲劇性對話。 這種解構與重組的建築語言,在虛實相生中構築起充滿張力的空間質感。

